MFResifence

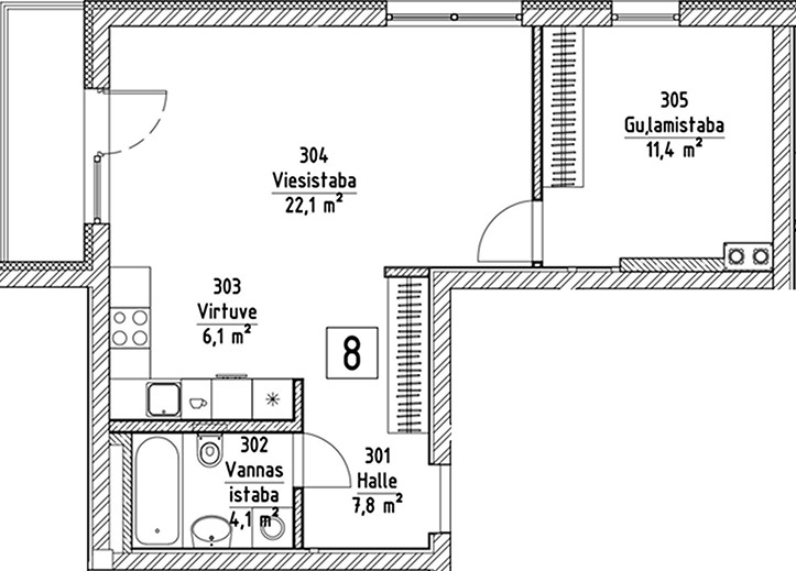
8 DZĪVOKLIS

Platība

56,4 m2

Istabas

2

Apdare

Pilna apdare

Balkons/terase

Nav

Divistabu dzīvoklis

Tiek izīrēts divistabu dzīvoklis jaunā biznesa klases dzīvojamajā projektā Rīgas centrā. Ēka celta atbilstoši augstākajiem kvalitātes standartiem: lifts, Itālijā ražoti TESI radiatori kāpņutelpās, ar rokām darinātas dizaina margas un oriģināli arhitektūras risinājumi.

Visos dzīvokļos ir premium klases apdare: Viva Floor kvarca vinils, PRISSMACER un Atlas Concorde flīzes, kā arī Dekton mākslīgais akmens. Uzstādītas iebūvētas mēbeles un tehnika no vadošajiem Eiropas zīmoliem: Colombini Casa virtuves un skapji, Blum furnitūra, Franke, Hansgrohe un Villeroy & Boch santehnika, LG sadzīves tehnika, Zonda Lighting apgaismojums.

Papildu komfortam un drošībai dzīvokļos ir: galvenais gaismas slēdzis, attālināti nolasāmi ūdens skaitītāji, dūmu detektori, ugunsdrošas ieejas durvis un rokturi.

MF RESIDENCE

Informācija

info@mfresidence.lv

Elizabetes iela 9 - 33, RĪga, LV-1010

SIA MFRESIDENCE | Reg. Nr. 45403052842.

Web-design by shader.lv