MFResifence

IZVĒLIES DZĪVOKLI

TIRGOTĀJU

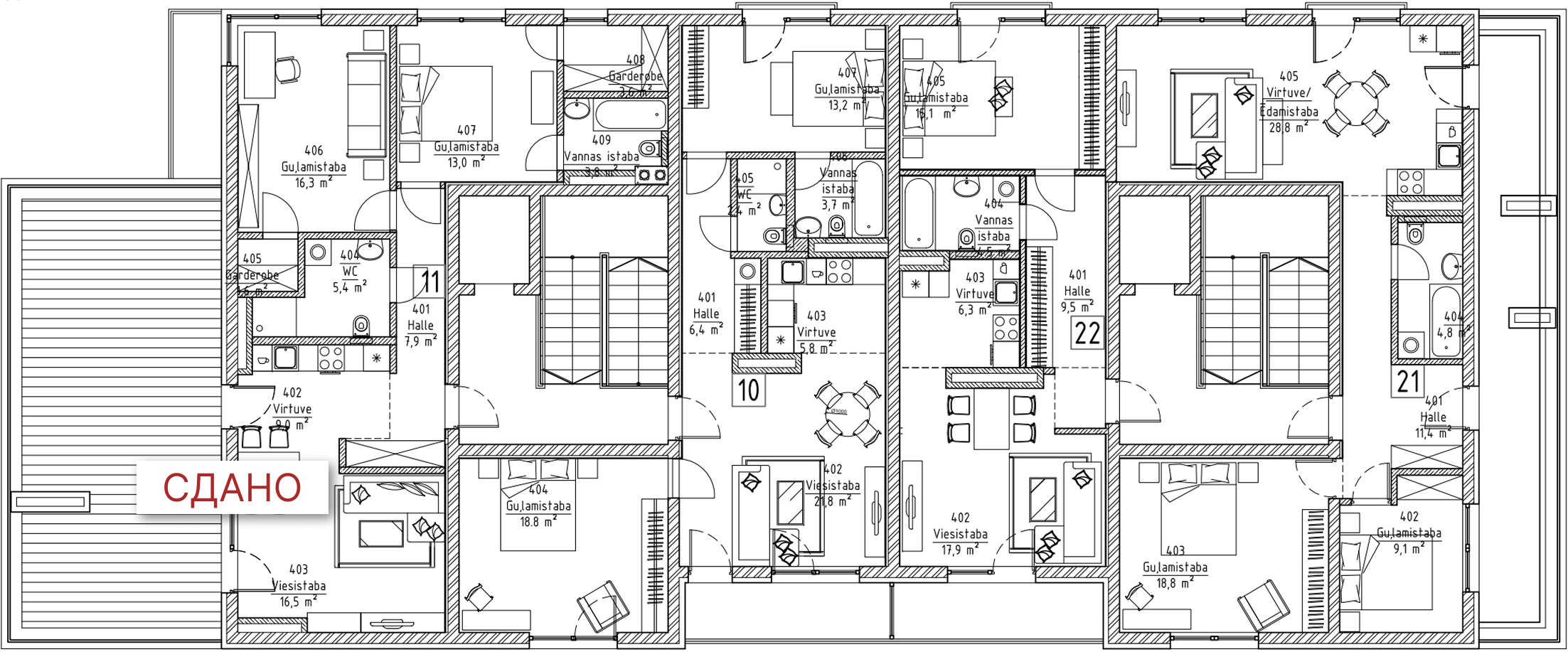
4 STĀVS

4 BRĪVI DZĪVOKĻI

MF RESIDENCE

Информация

info@mfresidence.lv

Elizabetes iela 9 - 33, Rīga, LV-1010

SIA MFRESIDENCE | Reg. Nr. 45403052842.

Web-design by shader.lv