MFResifence

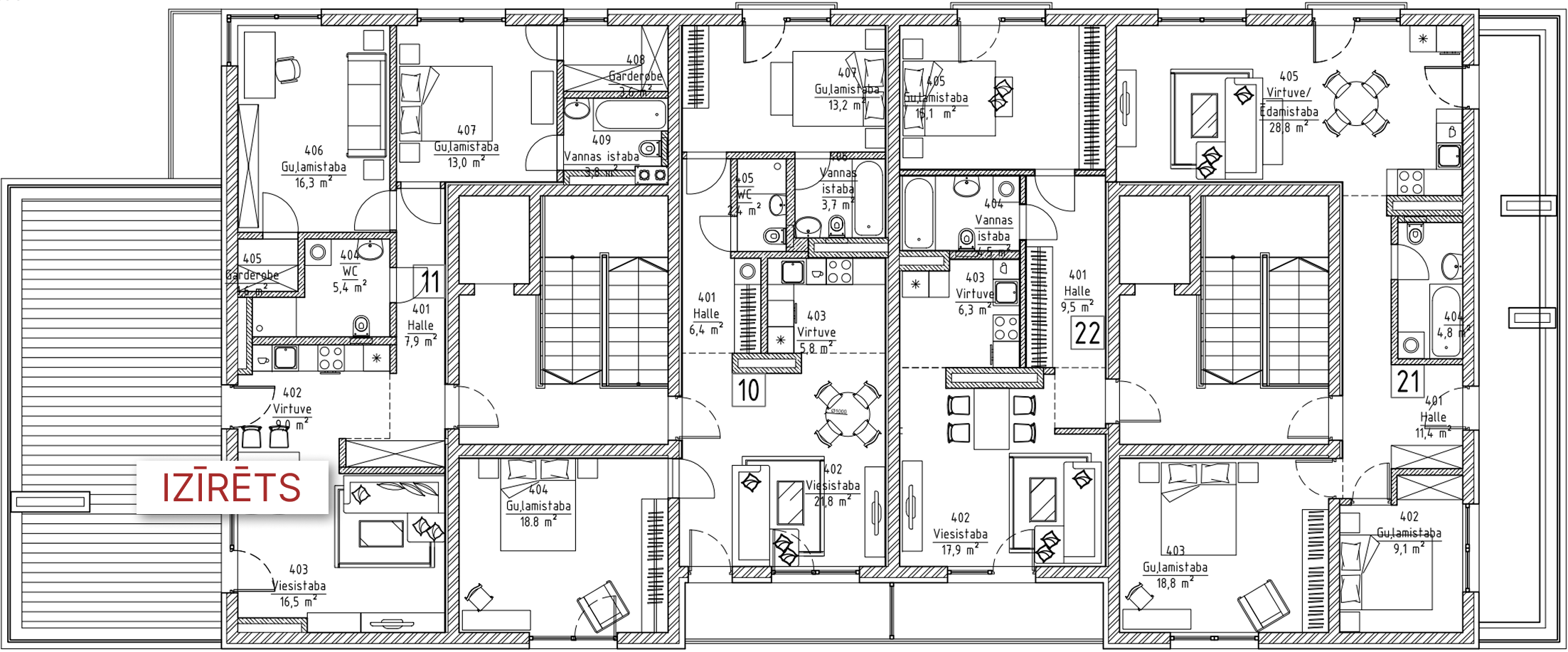
IZVĒLIES DZĪVOKLI

TIRGOTĀJU

4 STĀVS

4 BRĪVI DZĪVOKĻI

MF RESIDENCE

Informācija

info@mfresidence.lv

Elizabetes iela 9 - 33, RĪga, LV-1010

SIA MFRESIDENCE | Reg. Nr. 45403052842.

Web-design by shader.lv